Architecutre Services

ptitle-particle2
ptitle-particle1

Architecutre Services In UK

Estimate Builders Ltd is an assortment of Professional Architectural and Structural Design Services relating to the design of residential and commercial projects such as.
We have got a list of planning permission and building control approvals through our architects and in house structural engineers. Many of these projects are managed and monitored by our experienced team. The architects take the initial site survey and discuss the prospect of any project. On the 1st site visit, our Architects discuss your proposals and advise you accordingly about the possible options of design and planning to complete your dream project. They advise the clients about the suitable options of any plan. Our architects generate the electronic drawings which are normally checked by our client before the final submission is made to the local planning department. Any changes in the drawings are discussed with the clients beforehand. Most of the time we do not charge any amendment fees for the same project.

OUR EXPERTISE

We are an outstanding team of expert architects. We take pride in providing successful and incredible service to our clients. Your dream is our duty and it’s our priority to serve you to the fullest.

We Worked For

DRAWING AND DESIGN:

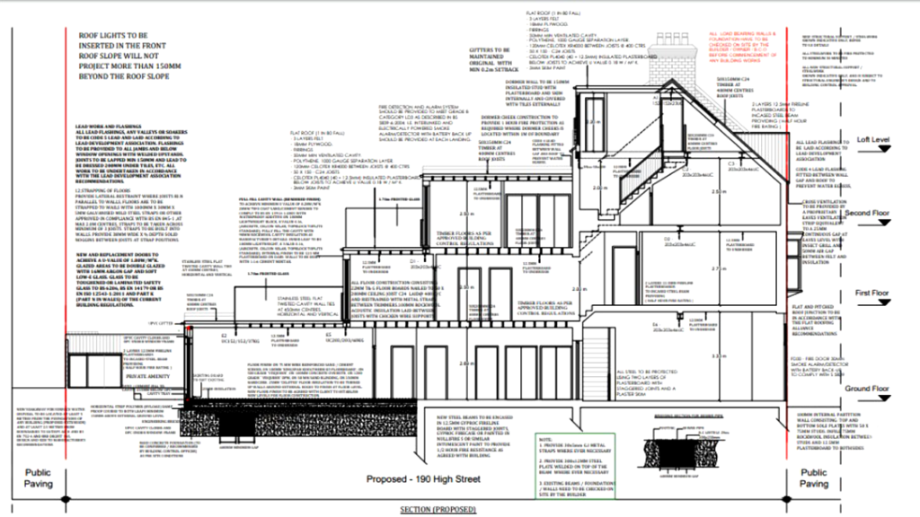
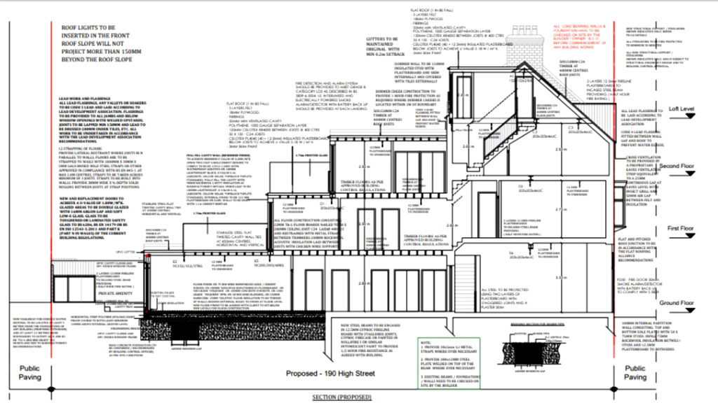
We have got a record of Planning permissions and Building control approvals through our architects and in house structural engineers. Planning permission is essential for the construction of New houses or extensions of existing ones. Our design and planning services consist of existing and proposed floor plans, elevations, a section of elevations, block and location plans, detailing and working drawings for contractors through Auto CAD software. All the electronic copies are emailed to the clients.

BUILDING REGULATION:

Building regulations ensure that the projects are carried out at acceptable standards so that buildings are moisture-resistant, strongly built and perfectly insulated. Our building regulation package includes the section of elevation and detailing of the working drawings to make it understandable for the builders and contractors.

STRUCTURAL CALCULATIONS

Structural calculations are to ensure the performance of structure during its design life whilst taking into consideration, safety, and aesthetics as per the preferences of the client plus practical and economical bases.

PROJECT MANAGEMENT

With our years of experience and skill, we are experts in our field and give utmost dedication to each project. From planning to executing and everything in between is monitored and managed in the hands of experts.

We Worked For

Architectural Services

If You are planning for a New Built home, Loft conversion, Domestic extension, or refurbishment CONTACT US for the hassle-free arrangements and dealing where our architect will take the initial survey and discuss the prospect of projects on the very first visit. Our team will discuss your proposals and advise you accordingly about the option of designing and Planning to complete your dream project. Further proceeding with Electronic Drawings, mandatorily approved by the client before its departure to Local Planning Department. Even after the submission of the initial plan, clients are to be consulted before any changes have been done.
Prev
Next
Drag
Map